Zur Immobilie
An sonniger und ruhiger Lage, in Gehdistanz zu öffentlichen Verkehrsmitteln, Einkaufsmöglichkeiten sowie Schulen und Kindergarten, befindet sich dieses Mehrfamilienhaus mit Praxisanbau aus dem Jahr 1953. Die Liegenschaft ist gut unterhalten, laufend saniert und vollvermietet. Eine Übersicht der ausgeführten Unterhaltsarbeiten ist dem Anhang zu entnehmen.
Der Innenausbau stammt mehrheitlich aus den 1990er-Jahren. Bei Mieterwechsel wurden die Wohnungen jeweils partiell modernisiert (z. B. Küchen, Bäder sowie Erneuerung der Bodenbeläge, Malerarbeiten etc.).
1994 wurden im Rahmen des Dachgeschossausbaus und Fassadenisolation Balkone vorangestellt bzw. im Dachgeschoss angesetzt, sodass jede Wohnung über einen eigenen, grosszügigen Balkon verfügt, der vom Wohnzimmer bzw. von der Küche aus zugänglich ist. Gleichzeitig wurde der Dachstuhl angehoben und aus den Estrichen zwei einladenden DG-Wohnungen erstellt.
2024 wurde die Heizung durch eine Erdsonden-Warmepumpenheizung ersetzt.
Die Liegenschaft umfasst folgende Einheiten:
2-Zimmer-Wohnungen (2 Einheiten):
– ca. 53 m² (Erdgeschoss)
– ca. 43 m² (1. Obergeschoss)
2,5-Zimmer-Wohnung (1 Einheit):
– ca. 63 m² (Erdgeschoss)
3-Zimmer-Wohnungen (2 Einheiten):
– ca. 61 m² (Erdgeschoss)
– ca. 62 m² (1. Obergeschoss)
3,5-Zimmer-Wohnungen (3 Einheiten):
– ca. 73 m² (1. Obergeschoss)
– ca. 79 m² (Dachgeschoss)
– ca. 87 m² (Dachgeschoss)
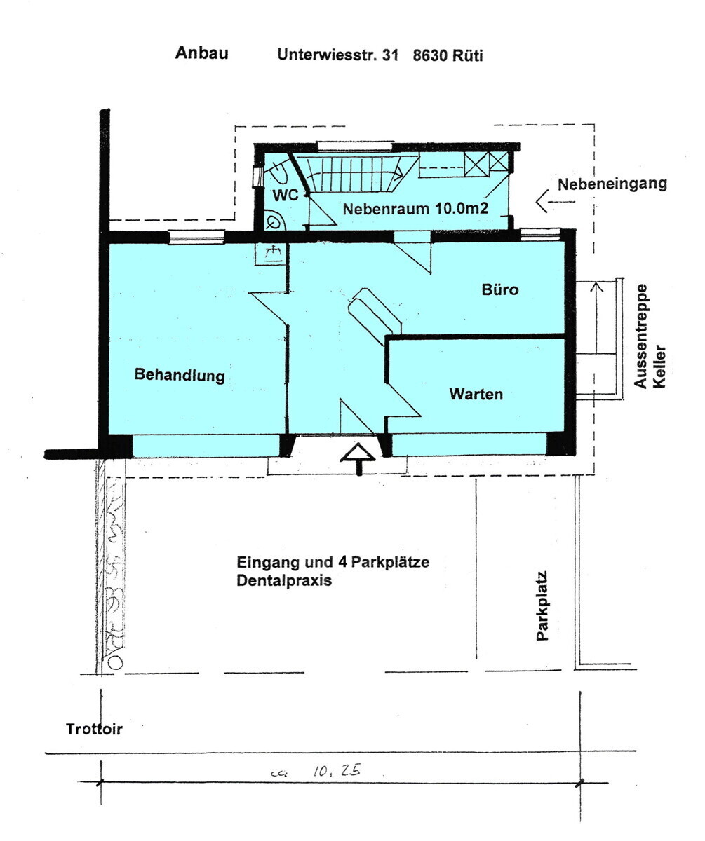
Anbau:
– ca. 64 m²
– derzeit an eine DH-Praxis vermietet
Für die Parkierung stehen zehn Aussenparkplätze sowie zwei Einzelgaragen zur Verfügung.
Das schöne Mehrfamilienhaus liegt am süd-östlichen Dorfrand von Rüti am Rande eines Quartiers mit vornehmlich Ein- und Mehrfamilienhäusern an ruhiger sonniger Lage und liegt in der Wohnzone W2b.
8630 Rüti, Schweiz














